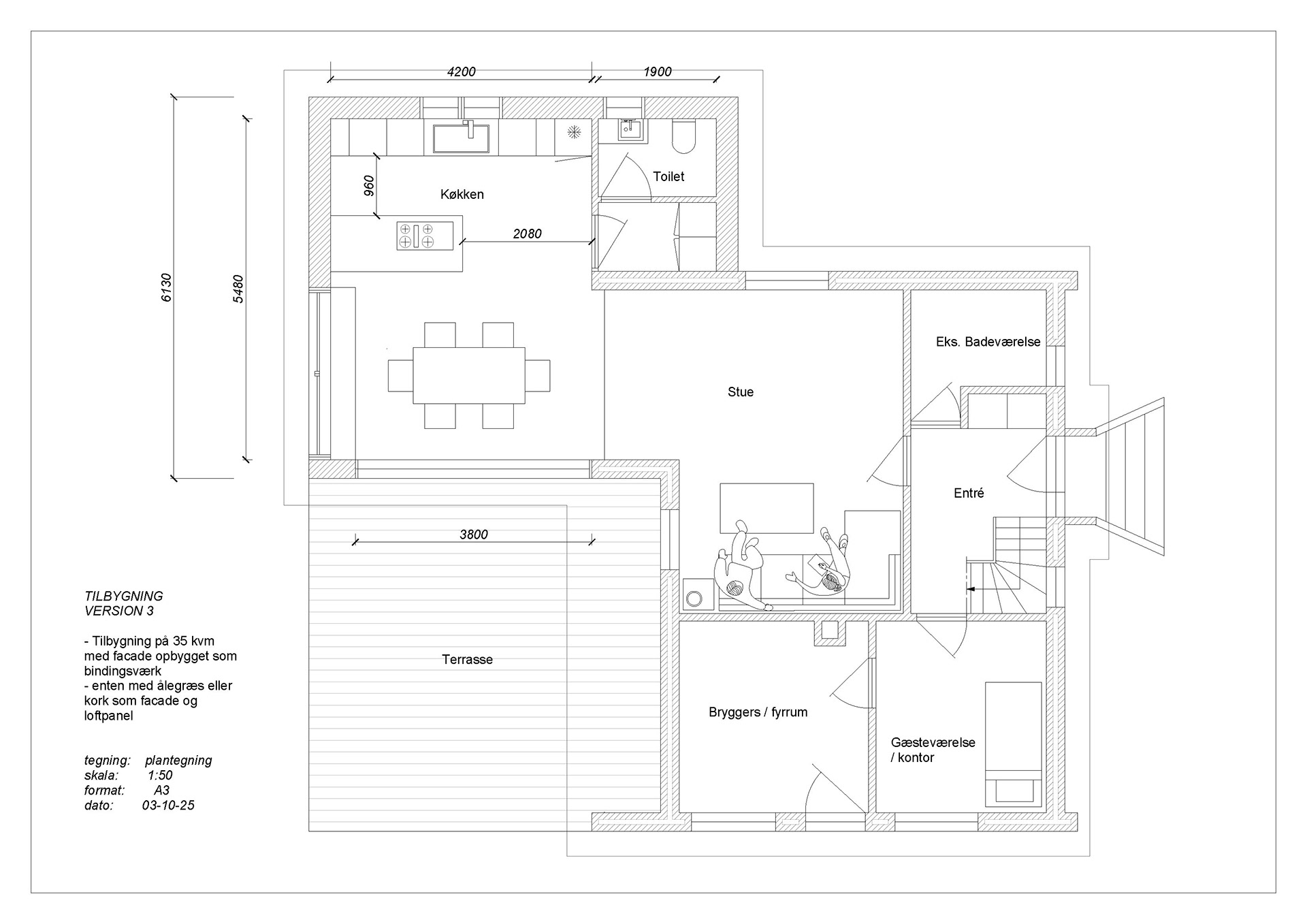
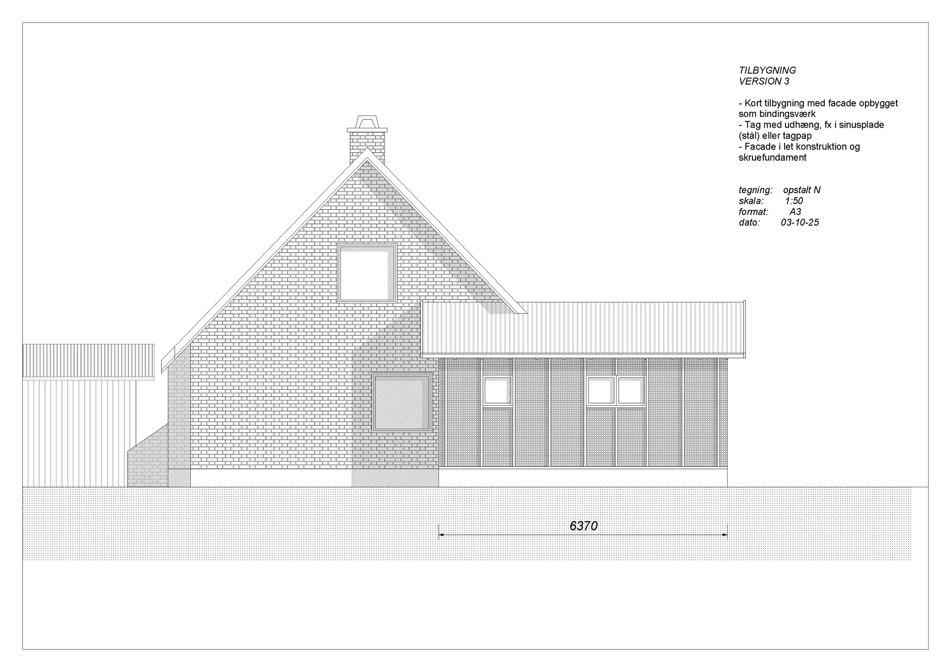
Dette skitseforslag er til en familie i Tårnby, som har købt et hus på 104 kvm fra 1960'erne. Familien ønsker et ekstra soveværelse, og vil gerne have et nyt køkken, med en klar forbindelse til deres have, hvor de også har et lille drivhus og køkkenhave. Tilbygningen bygger ud på det eksisterende uden at fjerne bærende vægge eller konstruktioner, og ligger sig på grunden således, at deres terrasse bliver afskærmet fra vejen mod nord, og får udnyttet eftermidag- og aftensolen mod syd-sydvest

You may also like

Back to Top